Proceso de obra
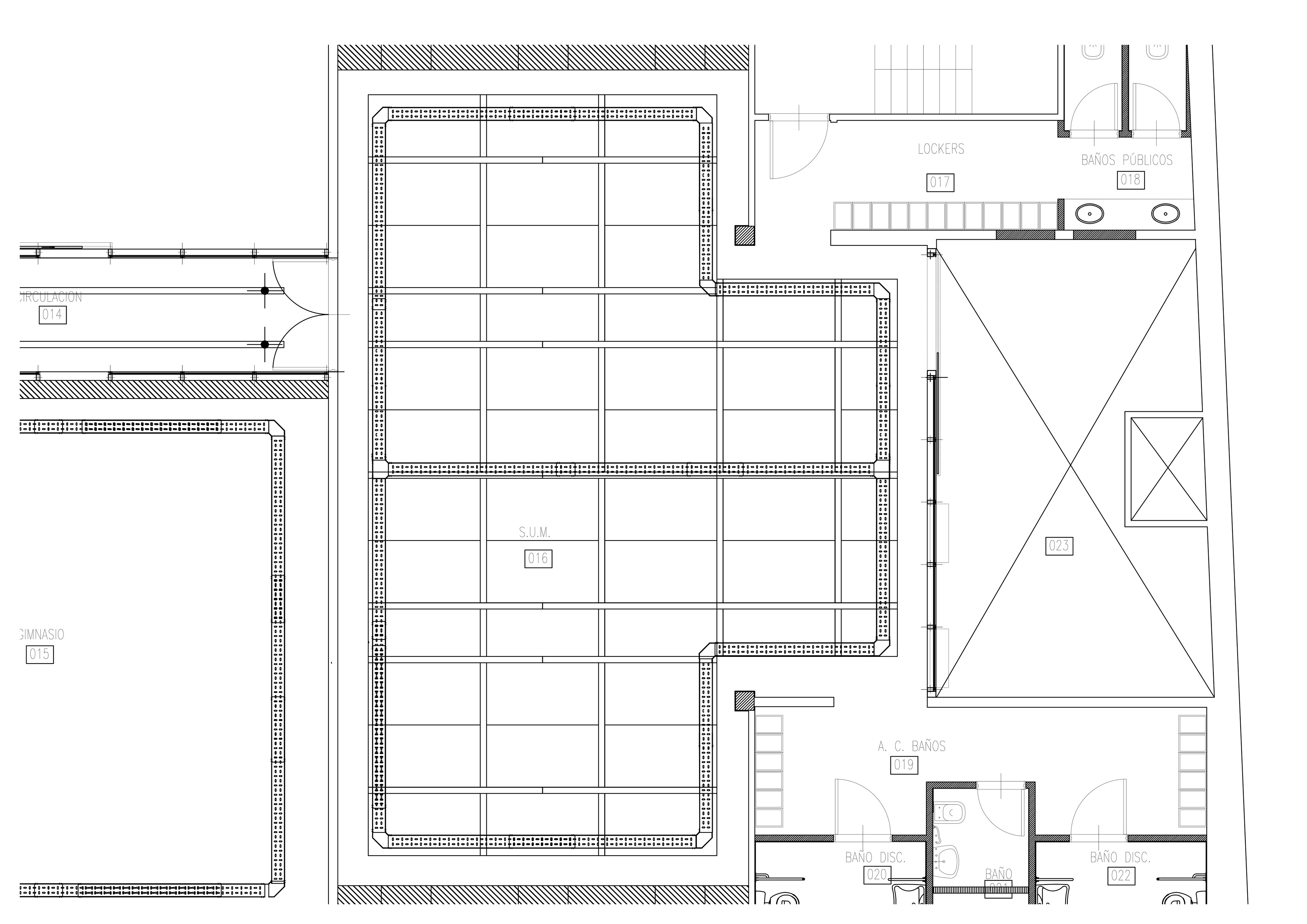
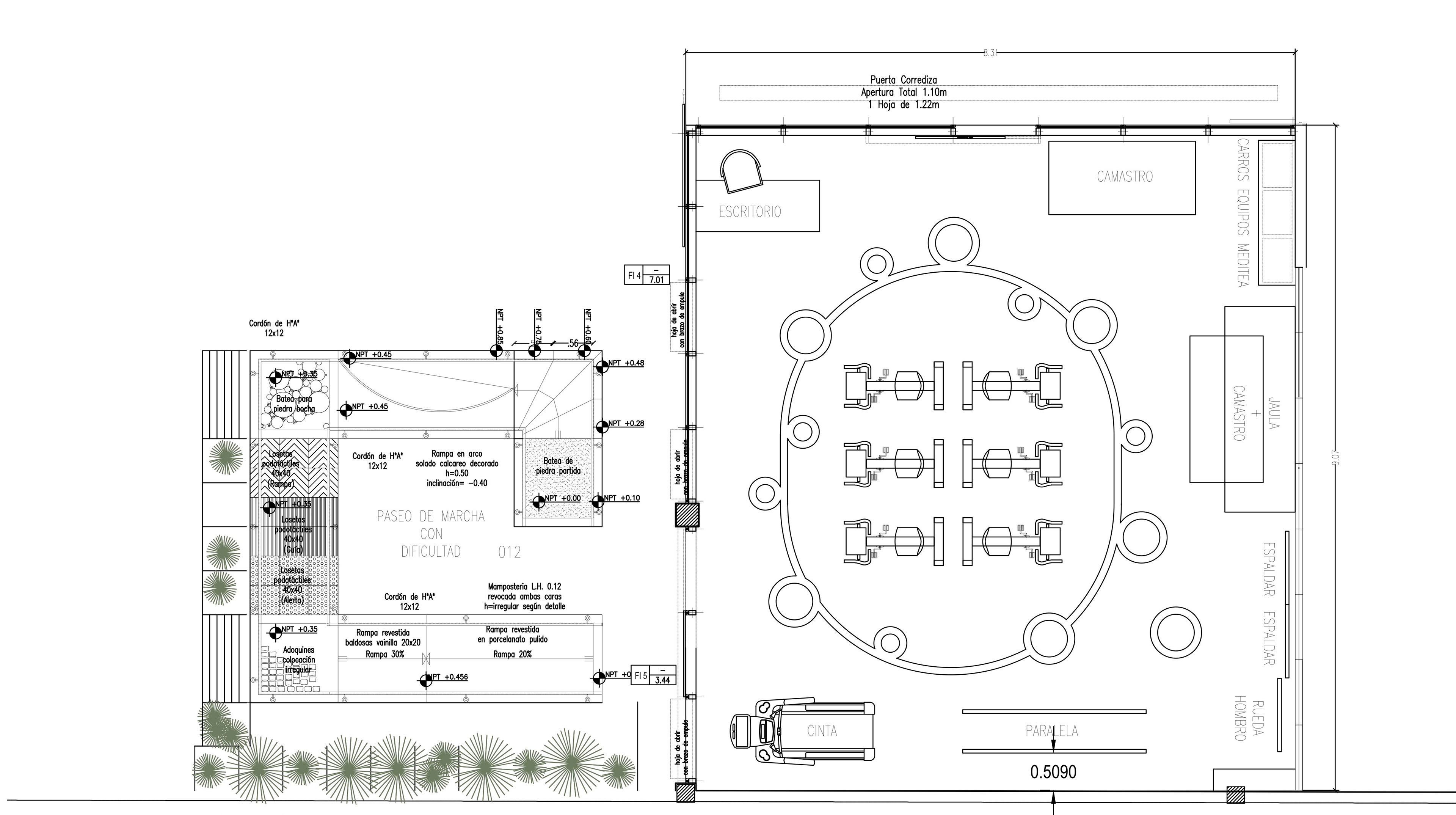
Hotel diseñado para el bienestar, donde los huéspedes eligen vivir, eligen sus actividades y crean un nuevo ambiente y estilo de vida. Trabajos realizados en el estudio Azpiroz Devecyan.