Technical drawings for interior design project in New York.
Millwork and electrical drafting
Technical drawings for interior design project in France.
Millwork and electrical drafting
Replanteo de una vivienda
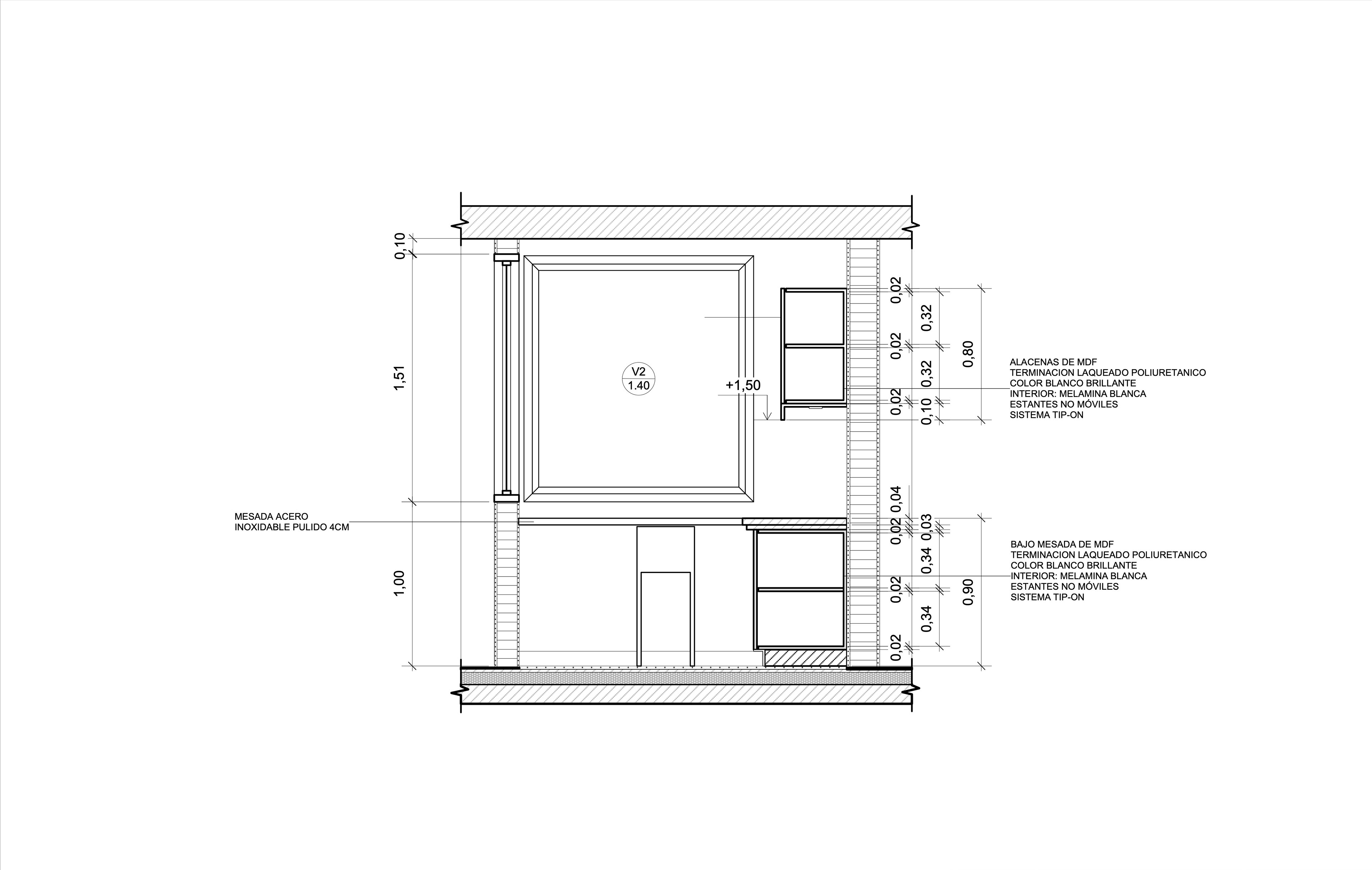
Diseño de cocina
Planos técnicos y elevaciones para un proyecto en Francia y uno en Nueva York.