ESTADO ORIGINAL
ESTADO REFROMADO
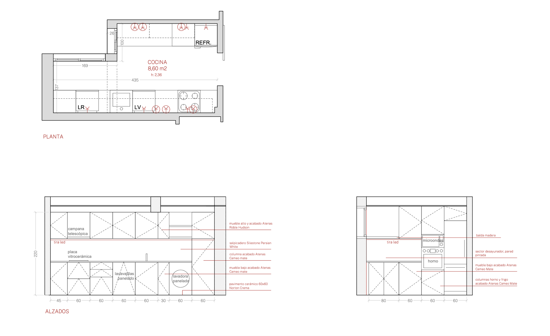
En esta reforma, logramos mucha amplitud y claridad. La cocina originalmente era muy oscura, tenía doble circulación, por un lado se accedía desde el recibidor de la vivienda y por el otro lado desde el pasillo hacia las habitaciones. Logramos ampliar su capacidad, cerrando ambos accesos y abriendo uno hacia el salón para generar una integración parcial por medio de una puerta acristalada. Los muebles de cocina, el suelo cerámico y la encimera aportan calidez, luz y actualidad, junto con la tarima colocada en toda la vivienda y el cambio de las puertas originales por unas blancas.