FOTOS ESTADO ORIGINAL
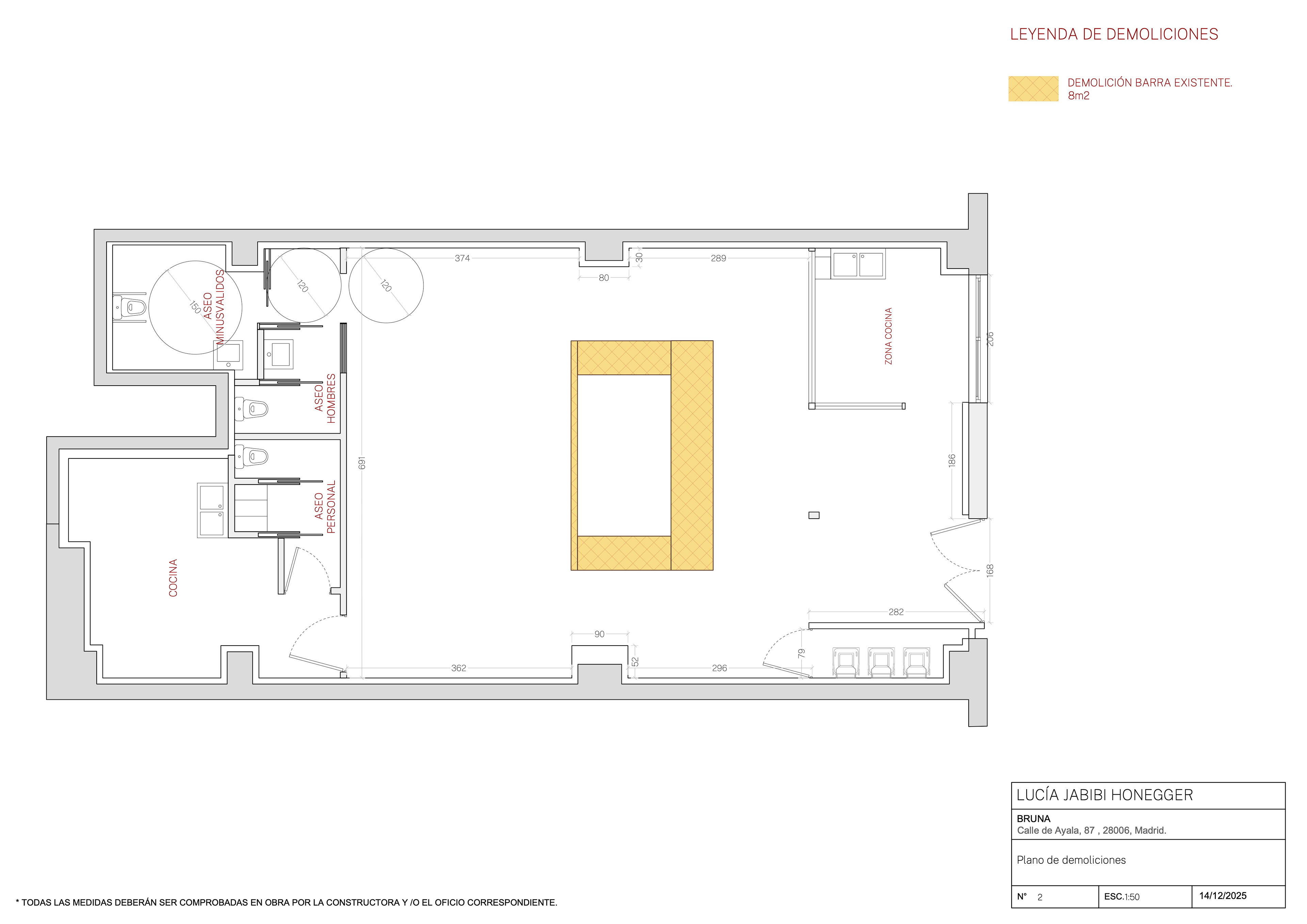
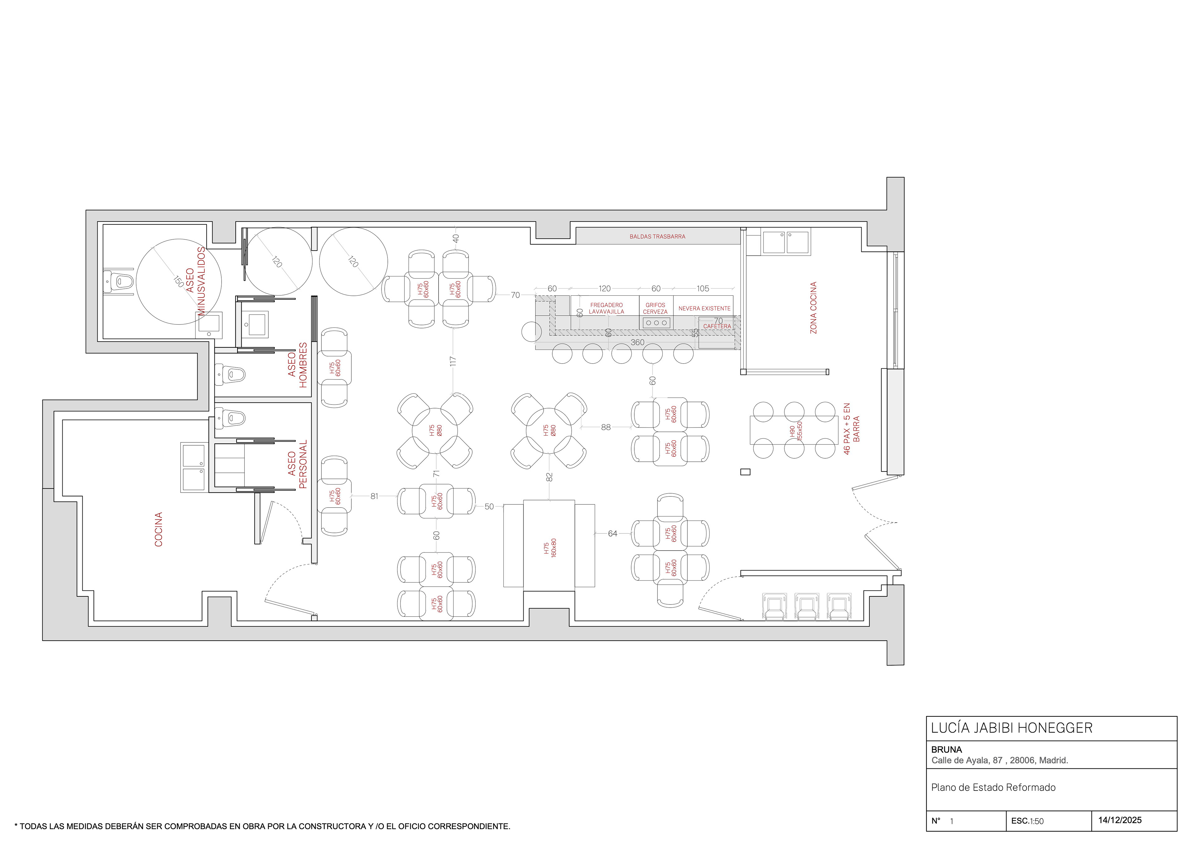
PLANOS | PROYECTO DE EJECUCIÓN
Bruna, cocina y café. Transformamos este restaurante en el barrio de Salamanca, para dar vida a Bruna: una propuesta basada en la cocina de siempre, con un toque actual, y un ambiente cómodo, como en casa. El proyecto acompaña esa identidad con un estilo clásico, elegante y cercano, con tonos claros, materiales cálidos y acentos en naranja, característico de su imagen. Pensamos el espacio desde la experiencia: mesas flexibles, una mesa comunitaria, la barra para ver todo lo que sucede detrás y una mesa alta en el ingreso, ideal para algo más distendido. La obra comenzó el 10 de diciembre y, en solo un mes, logramos esta transformación completa. El 21 de enero, BRUNA, abrió sus puertas para que todos puedan disfrutar de su cocina.