ABOUT
WORKS
PHOTO
POTTERY
Contact
ABOUT
WORKS
PHOTO
POTTERY
Contact
lucia jabibi honegger
Cañitas
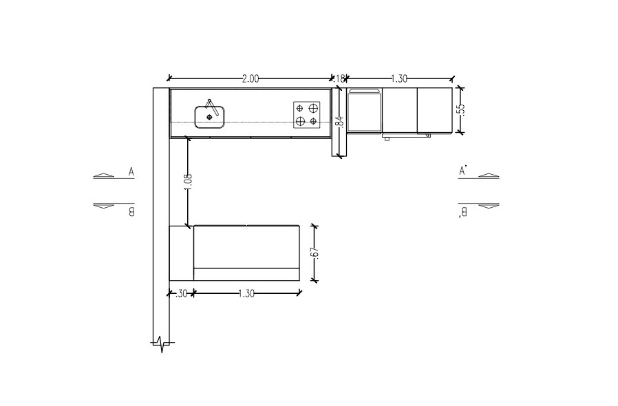
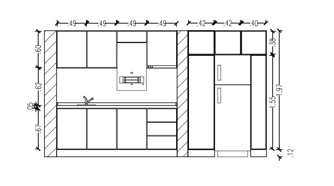
Reforma de cocina para una vivienda de dos jóvenes en Las Cañitas, Buenos Aires.
ANTES
DESPUES
You may also like
SB13_reforma e interiorismo
2024
GC18_interiorismo
2025
RESTAURANTE MADRID (Proyecto de ejecución)
2024
Katata Café
2020
micampus 2022
2022
FLEXLIVING_LIVING LIKE A PRO!
2023
A13_reforma
2025
CAMPO ARGENTINO
2019
Las Rozas de Madrid
2021
ZENTENO
2020
↑
Back to Top